[MODELACIÓN EN BIM-CLIMATIZACIÓN Versión #2 –]

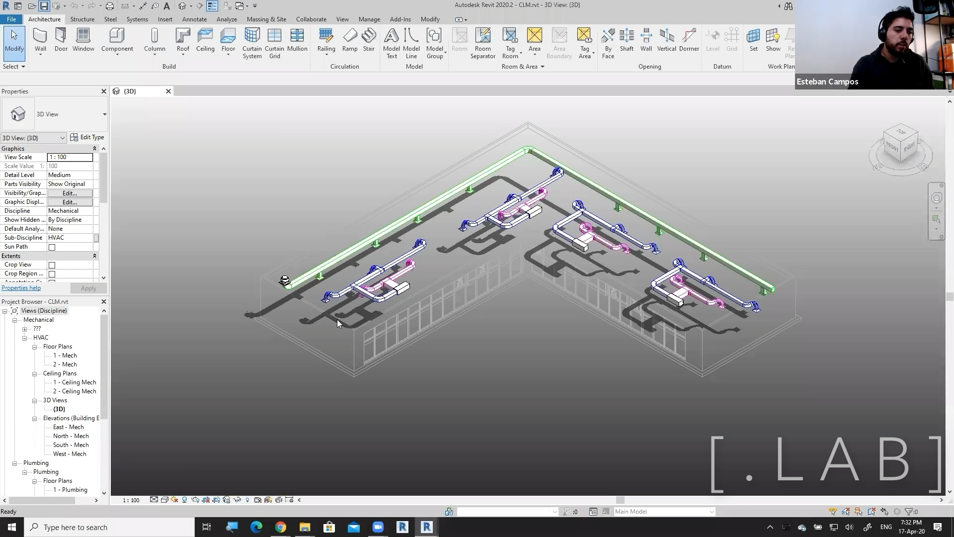
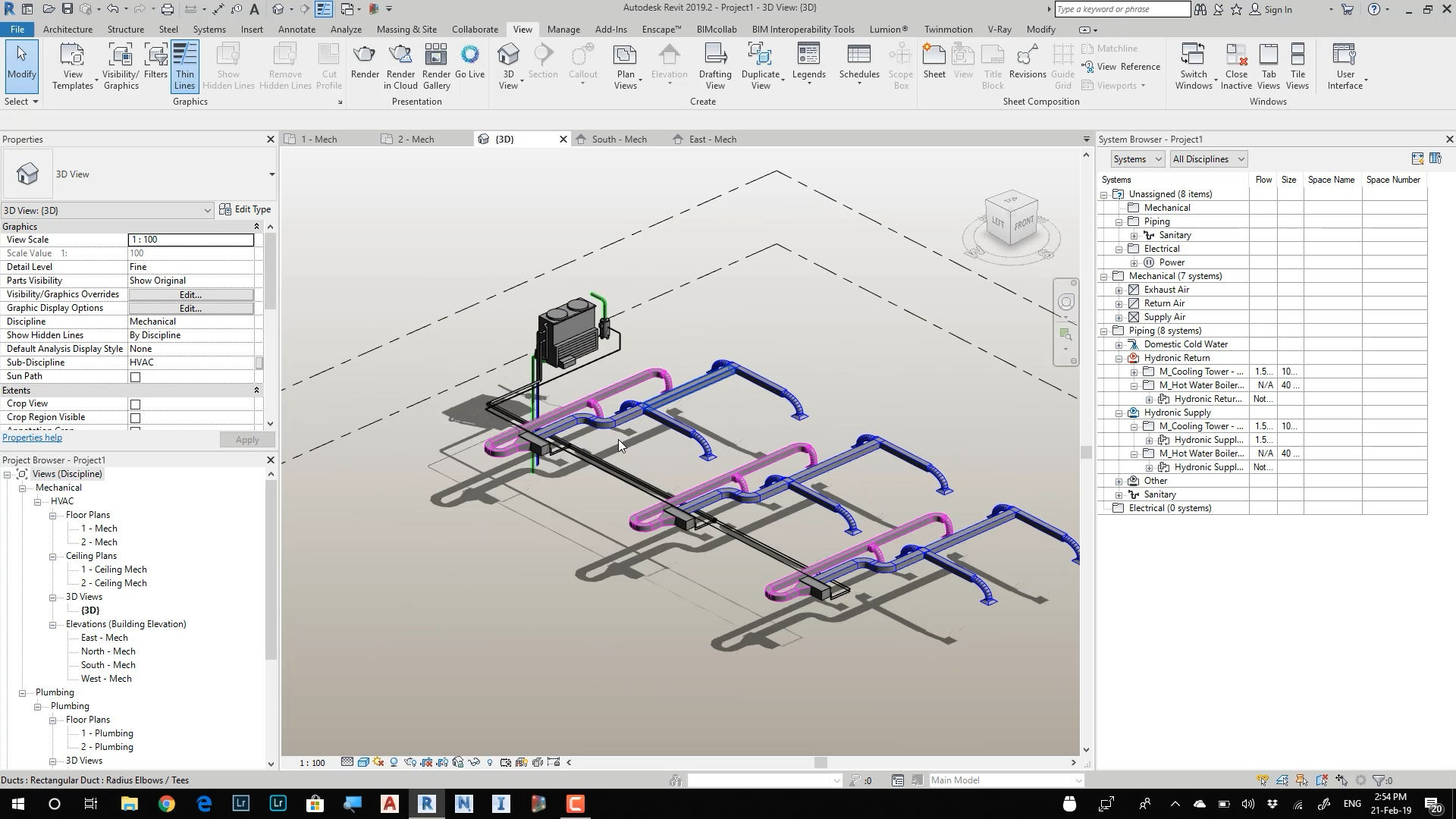
El programa de capacitación propuesto tiene por objetivo principal el de generar las competencias para el desarrollo de modelos BIM de proyectos de instalaciones de climatización, enfocado principalmente en el uso de la herramienta de Autodesk Revit, cubriendo las competencia y responsabilidades definidas para el rol de Modelación en BIM encontradas en la matriz de roles desarrollada por Planbim de CORFO.

MÁS INFORMACIONES
Curso BIM Modelación: Especialidad de Climatización

[Objetivos]

  • Actualización de los temarios de Revit Fundamentos y Revit Nivel 2 de Instalaciones MEP, en un sólo curso que entregue las competencias necesarias para el desarrollo y entrega de proyectos de instalaciones de climatización.

Presionar para más información.

[Temario general]

  • Módulo 01 Fundamentos de BIM | 16 hrs.
  • Módulo 02 Modelación en BIM | 20 hrs.
  • Módulo 03 Parametrización en BIM | 16 hrs.
  • Módulo 04 Documentación en BIM | 20 hrs.
  • Módulo 05 Trabajo Colaborativo BIM | 16 hrs.
  • Cierre del Curso Modelación en BIM | 4 hrs.

Presionar para más desglose del temario.

[Requisitos]

  • Conocimiento a nivel de usuario de Windows.
  • Conexión a internet de 5 Mbs o superior descarga y subida.
  • Contar con un computador básico para conectarse de manera remota a los computadores de [.lab]
  • Los computadores remotos son compatibles con sistema operativo Windows o MacOs.
  • Para solicitar un computador remoto con las licencias instaladas y especificaciones de hardware, se recomienda conexión a internet de 15 mbs o superior descarga y subida.
  • Si el estudiante quiere usar directamente su computador, se recomienda ver los requisitos de sistema para el producto a estudiar. | Ver aquí.

[Horario]

  • Información general: 
    • 23 sesiones / 92 horas totales.
    • Horario: asincrónico, horario flexible.
    • Inicio: Desde la compra del curso.
    • Término: Esta modalidad permite el término hasta un año despues del inicio del curso.

 

[Incluye]

  • Diploma Oficial [.lab] con verificación electrónica.
  • Insignia de Certificación para LinkedIn.
  • Certificado de Participación oficial de Autodesk.
  • Ingreso por un año posterior al término a la plataforma web del curso con su material y grabaciones de clases.

[Ubicación]

  • Modalidad remota / curso online asincrónico.
  • El día del inicio se curso se le dará acceso a su portal del curso asignado.
  • Se contempla una clase de introducción a la plataforma de administración de cursos de [.lab]

[Metodología]

  • Clases e-Learning asincrónicas con soporte sincrónico
  • El material del curso son alojadas en el sistema de administración de cursos de [.lab]
  • Se considera una evaluación parcial al final de cada clase y una evaluación general al final del curso.
  • Las evaluaciones son teórico practicas.
  • Las evaluaciones son automáticas y son realizadas través del portal del curso en el sistema de administración de web de [.lab]
  • Para ver una explicación de la propuesta de temario y la metodología te invitamos a ver la siguiente presentación. | Ver aquí.

[Formas de pago]

  • Transferencia electrónica
  • WebPay – Pago hasta 6 cuotas sin interés.
  • Paypal – Para estudiantes fuera de Chile.

[Valor]

CLP $620.000
  • Precio por participante.
  • Elegir moneda con botón CLP/USD.

 

Pago de Laboratorio
Contáctanos
×
Seleccione su moneda